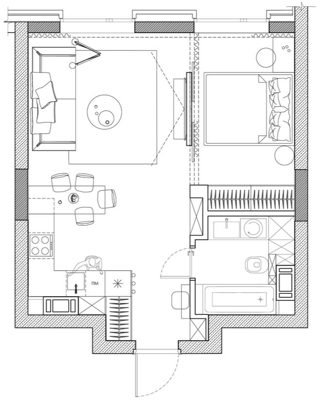
这个 40㎡ 小公寓,是一位年轻女住户的家,她希望拥有一个简单而清新的家,于是设计师将原先封闭的布局打开,引入充足自然光,利用灵活隔断划分公共区与休息区并选用温暖木材配搭暖灰色墙面,营造细节精美比例协调的家居环境。


温润木地板由玄关延伸至整个室内,木质小桌台悬挂于全身镜表面,下方搭配藤编制圆柱换鞋凳,左侧为通顶白色鞋柜,容量充足,柜面圆形挂钩方便住户出门取放衣物。

厕所门旁侧拼接壁龛式开放书架,内衬面选用高档的木纹饰面,上面摆放各类书籍和住户喜爱的艺术品。

起居空间将客餐厨三合一,以自然Kaiyun全站网页色调为主,开窗将自然光引入室内使整体明亮Kaiyun全站网页又开放。

靠近玄关的餐厨区域由 L 型餐厨台和四人木餐桌组合构成,布局紧凑但功能齐全。

白色壁柜两端均设开放式收纳格,底部安装连续隐藏光,既能照明也能使吊柜看起来更加轻盈,冰箱等设备匿于左侧柜体,保持了界面整洁。

架设于烹饪面上的木板餐桌,周围摆放四把藤编餐椅,一组灯笼结构状铁艺吊灯组合,装设于花黑色线条槽下,个性十足。

与餐桌相邻的客厅选用高级灰布艺沙发,置于米色麻制地毯上方,中间配以一座黑色圆形茶几,墙面还挂设一副协调的棕色系装饰画为室内增添一丝艺术氛围。
精巧的白色固定矮墙,前方搭配与电视同宽的收纳地柜,存放住户各种日常用品。

隔断墙后方的卧室拥有大片采光窗,天花边缘窗帘处设隐藏光更添氛围感,靠窗小书桌面向通顶装饰镜面墙,旁侧配以一把舒适靠背椅,十分惬意。

低矮窗台摆放小盆栽和艺术陶罐,木质地面还装设地暖系统,在冬日为主人房间注入浓浓暖意,同时隔断处不透光窗帘也保证私密性。

床头背景墙通体选用,环保且隔音性能良好的装饰板材,亮眼的暖色调,成了最吸睛的存在,床铺一侧做连续白色简约衣柜,保证充足的衣物储存空间。


卫浴空间元素丰富多样,大圆梳化镜与一侧墙面相互咬合并自带隐藏光,映衬后方高档的木纹理内衬面,白色收纳地柜中间打开打破单一的界面特点。

白色洗手盆配以黑色金属水龙头,斜向黑色圆筒吊灯从右侧降下,黑白搭配充满现代感。

坐便区背景墙留有一处窄型壁龛,木板架承载毛巾等卫浴用品,香薰产品为室内增添一缕芳香。

浴缸区墙面及浴缸壁面,均采用色泽丰富的水磨石材质,外侧的浅灰色纱帘起到一定的干湿分离作用。
Copyright © 2024 开云全屋实木定制公司 版权所有 备案号:粤ICP备20024463号 网站地图