您当前使用的浏览器版本过低,可能存在安全风险,建议升级浏览器,或者用以下浏览器浏览
保利誉滨江售楼处(保利誉滨江)首页网站-保利誉滨江欢迎您-楼盘详情保利誉滨江最新价格-户型图-容积率@2025年10月售楼处
保利誉滨江售楼处(保利誉滨江)首页网站-保利誉滨江欢迎您-楼盘详情保利誉滨江最新价格-户型图-容积率@2025年10月售楼处
保利誉滨江售楼处电话:【预约看房热线】保利誉滨江官方售楼处电线【售楼处电话/地址】保利誉滨江售楼处电话:【开发商认证】
如有问题欢迎来电咨询,预约来电尊享购房优惠,可预约案场内部销售人员,专业一对一热情服务,让您用专业眼光去买房。

保利誉滨江售楼处电话:【预约看房热线】保利誉滨江官方售楼处电线【售楼处电话/地址】保利誉滨江售楼处电话:【开发商认证】
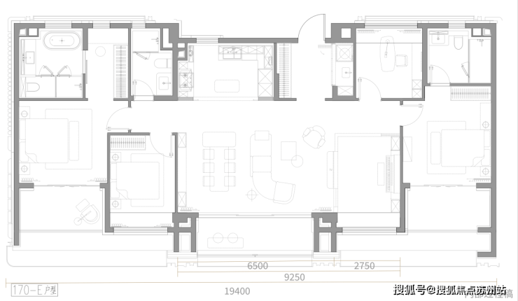
根据方案,项目规划建造8栋5-17层住宅,产品类型涵盖高层、洋房和叠拼,主推115㎡三房和137㎡四房,预计年底入市。
部分楼栋设有架空层,社区设置下沉式庭院、泳池会所,并配建部分社区配套与公共租赁住房。
2025年5月,在上海四批次土拍中,保利置业经过72轮激烈竞价,豪掷42.4亿,拿下杨浦区定海社区N090602单元L4-02地块,溢价率26.3%。

保利誉滨江售楼处电话:【预约看房热线】保利誉滨江官方售楼处电线【售楼处电话/地址】保利誉滨江售楼处电话:【开发商认证】
整体来看,楼盘的布局没有变动,仍规划建设8幢住宅,包含高层、洋房、叠拼,同时配建社区配套与公租房。
此次重点对叠拼楼栋的高度和层数做了调整,甚至连造型也变了。毕竟,这将是杨浦滨江第一个带有叠拼别墅的项目。
今年以来,杨浦滨江的地价逐渐走高,竞争日趋激烈。保利置业这块地的先天条件并不十分优秀,南偏东近50度。
不过,保利置业在现行楼市规则下,把能想到的优势都做足了,市面上流行的配置一样不落:
会所、架空层、风雨连廊、一梯一户、多阳台、多飘窗,还有270度转角飘窗,在产品力上做到了极致。
周边配套一应俱全,交通上北横通道、中环军工路等主干道环绕周围,距离12号线米。

教育上有平凉路第三小学、东辽阳中学、上海市第二十五中学,还有规划中的复旦国际学校。商业上有上海国际时尚中心和在建的超极合生汇。
此外,周围还有波阳公园、杨树浦电厂遗迹公园、上海市总工会沪东工人文化宫、白洋淀足球场馆等配套,能够满足文体休闲需求。

保利誉滨江售楼处电话:【预约看房热线】保利誉滨江官方售楼处电线【售楼处电话/地址】保利誉滨江售楼处电话:【开发商认证】从地理位置上来看,没有多大硬伤,加上东外滩的发展规划,以及复兴岛的产业加持,未来会有不错的预期。

加上难得的一线代宅,此类户型在杨浦滨江乃至上海高端市场中均属稀缺,尤其适合追求“一步到位”的改善家庭。
不同于普通社区公园,量子公园以多重维度立体空间,设有二楼观景台等特色设施,,互相叠加交织进行规划。
同时加入科技感与潮流感,以链接复兴岛,成为迭代新的活力聚场;契合复兴岛“复兴时刻12刻度”理念,形成全龄友好的休闲交流活力场所;同时延续复兴岛的植物脉络,形成四季观赏区。
这个公园将成为居民休闲娱乐的绝佳场所,无论是清晨的晨练,还是傍晚的散步,都能在这里找到属于自己的宁静与惬意。
下沉式的庭院+架空层,带来立体式多重景观园林的体验,从效果图看和绿城潮鸣东方非常接近!

保利誉滨江售楼处电话:【预约看房热线】保利誉滨江官方售楼处电线【售楼处电话/地址】保利誉滨江售楼处电话:【开发商认证】
社区规划约1500㎡地下会所,涵盖健身房、洽谈区、恒温泳池、瑜伽室等功能空间
地下会所+架空层泛会所,整体体量约3000㎡,保利置业超大手笔打造项目公区,


2025年5月,在上海四批次土拍中,保利置业经过72轮激烈竞价,豪掷42.4亿,拿下杨浦区定海社区N090602单元L4-02地块,溢价率26.3%。


如有问题欢迎来电咨询,预约来电尊享购房优惠,可预约案场内部销售人员,专业一对一热情服务,让您用专业眼光去买房。
保利誉滨江售楼处电话:【售楼中心热线】保利誉滨江营销中心热线,楼盘项目全面介绍,本电话为开发商提供线上预约售楼电话,楼盘项目全面介绍(包含楼盘简介,均价,房价,现房,期房,别墅,叠墅,大平层,价格,楼盘地址,户型图,交通规划,备案价,备案名,项目配套,样板间,开盘时间,认筹时间,楼盘详情,售楼处电话,最新消息,最新详情,周边配套,一房一价,最新进展等详情咨询)楼盘详情丨价格丨更多优惠丨机不可失丨欢迎致电丨诚邀品鉴!售楼处位置丨特价房丨工抵房丨剩余房源丨户型图丨最新消息丨免责声明:将文章内容综合来源于网络、只作分享,版权归原作者所有!!如有侵权,请联系我们,我们第一时间处理如有问题欢迎来电咨询,专业一对一热情服务,让您用专业眼光去买房。如果您想了解更多楼盘详情,欢迎提前预约拨打保利誉滨江售楼处电线年刚需买房攻略(改善买房、买房注意事项)知识大全
买房是人生大事,即便再谨慎,也难免遭遇 “陷阱”。若能提前掌握核心要点,不仅能将踩坑概率降至最低,还能比多数人更精准地选到好房。本文从刚需 / 改善需求出发,覆盖售楼处隐藏规则、贷款避坑、烂尾房防范、验房细节等十大核心问题,帮你理清 2025 年买房思路。
不管咱们怎么小心,买房难免会踩坑,只是坑的大小不一样而已,如果我们注意Kaiyun官方中国这十大问题,踩坑的可能性基本就减到最小,但是起码能超过99.9%的买房人。
六,北京买房、上海买房、深圳买房和其他城市买房的区别和注意事项有什么不同?

什么房子你有钱开发商也不愿意卖给你?【如果不了解这些,先别说买房的事,了解清楚再说,简单整理如下】
第一,买房轻装修,重地段,地铁第1,学校第2,大型商业第3,物业服务建筑品质户型第4,环境和楼栋位置第5。买房的时候,千万不要被开发商的精装修迷花了眼,冲动下单。宁可买好地段的毛坯房,也别买烂地段的精装修房。开发商给您做的精装修,住不了三年就会原形毕露,别问我是怎么知道的,买过精装修房的人自然就懂。
第二,不管南方还是北方一定要选择南北通透的房型。哪怕价格贵 点,也要选南北通透的,因为在未来的二手房市场中,南北通透的房子通常要比纯南向、纯东向、纯西向的房子贵 10% - 20%以上。
第三,2020年我就说过,商业地产不能碰,凡是商业性的地产最好都别碰,包括写字楼、商住、商铺、门面房等一些文旅项目,统统不建议碰。因为这些房子一旦入手,亏损是小,关键是以后很难卖出去。如今我国的商业地产已严重产能过剩,不管是一二线城市还是三四线城市,全都产能过剩。
第四,南方北方买房,采光都重要。如果是高层小区,楼间距不大的话,您一定要买在楼层的 2/3 以上,一定要选从日出到日落都能见到光的楼层,但是2025年开始,18层以上的房子不能碰。
第五,二层的房子,只要超过八层就避开为好,如果超过18层,二层的房子堪比地窖,一层顶层都可以考虑。
第六,您一定要牢记,楼间距过近的小区千万不能买。从住进去第二天你就一定想卖掉这套房子,现在有些开发商太没良心,二十多层、三十多层的楼,楼间距只有二三十米,标准是冬至日太阳光能照墙角两个小时以上,否则就是开发商违规。眼睁睁看着业主用一生的积蓄买您的房子,却让业主一年四季都见不到完整的阳光,而且开发商一定有利益看得太重的嫌疑。
第七,不管是养老还是为了孩子上学问题,一定要选择年轻人多的小区,老人在年轻人多的小区至少多活三五年,因为一个充满活力的小区才有生命力;如果是孩子上学,最好选一个老师邻居多的小区,这种小区你能多省不少钱,如果说孩子有什么题目不懂,直接发到邻居群就解决了;而且年轻人多的小区,特别是什么咋骗?网络新问题、都能提前知道并且避坑,总之,年轻人多的小区才是宝。
第八,大银行比小银行靠谱一定记住,买房贷款的时候是可以货比三家的。记住,不同的银行有不同的房贷政策,问问各个银行的贷款利率是多少,要选择贷款利率最低的。不同银行放款的利率最高差别能达到 1%,如果贷款 500 万,一年至少能差 5 万块的利息,这可都是真金白银,而且,大银行政策多,特别是可以申请延期还贷,或者平时优惠福利啥的,这个房产老中介才知道的。
第九,砍价是关键,会不会砍价,是确定一个房产中介是否专业的重点。认真听,不管是新房还是二手房都是可以砍价的。买新房的时候,给您的最终成交价,在您决定交首付、交定金的时候,一定要跟他们要特批价,找他们的领导、总监要特批价,如果不给,您就不交钱,他们一定会给的。二手房的交易佣金也是可以砍价的,最多能打 5 折。一定要学会讨价还价,几分钟的努力就能帮您省下几年的工资收入,何乐而不为呢?而且,砍价的事提前和你的房产中介沟通好流程,1.2.3.4.5点分别怎么做?

进售楼处之前,一定要知道,自己进售楼处一定比老中介带你进售楼处多花钱,可能售楼处的人会反对,你问问买房的老司机问问就知道了;
一定小心没有标注具体数据的户型图,房子的沙盘模型和楼盘区域图拍一个照片留底,以后肯定有用;
售楼处必须公示楼盘的不利因素,这个是房管部门保护买房人的利器,很多房产中介都不懂这个,不信你问问就知道他是否专业;
【总结,没有准备好,别进售楼处,进了售楼处,就得有流程,这个是房先生十多年经验,同行如果抄袭必究】
进售楼部的第一件事是做什么呢?辨别五证真假,只要不能贷款的房子,肯定没有五证或者其中一个证件是假的,就是查看这个开发商有没有五证,且五证是否齐全。这个是没问题的,一般来说,我们的开发商都会将这五证公示在售楼部里,您想看的话随时都能看。要是他没有五证,那切记千万不能买。五证是:国有土地使用证、建设用地规划许可证、建设工程规划许可证、工程施工证、预售许可证或者现房销售证。
还有一个非常重要的细节,房子的每一套都有公摊,户型图没有标明尺寸就一定要问清楚合同上写明的公摊比例,公摊面积是很重要的一个因素,也是确定房子性价比的关键。您去看房的时候一定要向顾问问清楚,这套房子的公摊是多少,实用面积是多少,得房率是多少。因为您房子的公摊面积越大,房子的使用面积就会越小。举例:同样面积的两套房子,一套房子公摊30%,总价100万,一套房子公摊20%,总价110万,你说谁更有性价比?
最好拿着征信报告再看房,征信不好,或者你不能确定你的征信情况,最好别先看房,贷款买一套房,有一件非常非常重要的事情,那就是确认您能否贷款。如果您贷不了款,那您交的钱一般是不退的,老中介才有办法可以退。因为开发商会找各种原因,说是您自己的问题导致贷款办不了,还会扣您的违约金,您就会白白损失好几万甚至几十万。所以在交定金之前,一定要确认清楚您能否办理贷款,如果不能,那就不要交,有了征信报告,一切有把握。

【三】怎么样避开烂尾房?之前已经遇到了怎么办?如何识别开发商资金健康情况?
开发商只有资金出现问题的才会烂,简单一个方法,看看建筑工地前后对比有没有少工人?建筑工地的工人工资前后对比正常发放没有?这个不复杂但是很关键。
另外,如果是上市企业,可以看它在资本市场的表现,这个就得懂一些金融知识的老中介才能看明白。
如果早几年已经遇到烂了的楼盘,看开发商是不是一直在与你沟通,并且出具书面调节,看工程是延期交还是停滞?如果既没有有效沟通,还是停滞,那么,收集证据,直接起诉开发商,并且要求银H停贷,申请方法很简单。
贷款利率是银行利率加上地方基点组成,贷款后基点永远不变,而银行的浮动利率会有增减,一般情况下,经济越向好,利率越上浮;而经济疲软,利率会逐渐往下走;
贷款买房,首付不是你的关键,未来能不能有确定好的还款能力,才是你需要评估的;
贷款买房以后,随时打听利率变化,确保能第一时间享受到低利率或者折扣优惠;
风险提示:如果你买房后没有还款能力了,也就是说断供三个月以上,银H有权利拍卖你的房子,如果拍卖款比你的尾款少,剩余部分你还得还上。
银行存在的违约金有哪些?比如提前结清贷款,还款预存额度不够,征信出现明显问题或者被其他执行等,银行都会提前联系你,并且要你支付违约金。有些银行会在合同里给您设置陷阱。众所周知,正常按揭买房,如果您在一年内结清贷款,是需要支付违约金的,所以,这些问题提前咨询好,特别是利率和提前还款这两方面。
但是,很多买房人不知道,如果遇到资金问题,可以向银H申请延期还款,而且银H也肯定有政策,不过这个一般人真不好操作,找内行人才能了解具体流程。

超过18层的高层电梯使用寿命是18年左右,也就是说,交房18年以后,电梯得从新买,如果维修,费用比买还贵;
老小区不管怎么样维修,基本功能都丧失了,也就是老小区除了能睡觉之外,电路老化、防火防盗功能、楼体老化、防寒保暖、以及居住人群会彻底改变,这些问题会让老小区一文不值,2024年到2027年可能就是分水岭,老小区和新小区两极分化会变得彻彻底底。
中国房地产即将迎来重大变化,未来或许再也没有所谓的刚需房了。如果您家里有老旧房屋,或者您正打算购买刚需房,那么,你了解清楚什么是刚需房?
未来人人都会有房子住,能买房的住自己的房子,买不起的租一辈子房子住,年龄太大回到一个房子特别便宜的地方买一套自己的房子,因为年龄老了以后是租不到房子的,不管什么房子都租不到,只能会到贫民窟养老,这不是提前焦虑,一定会成为事实。
也就是说,未来的小区也会分贫民窟和富人区,享受到的教育、商业资源、环境资源,会与现在存在天差地别。
近期,很多人都在谈论房地产的新状况,像首付降低了、利息降低了、相关部门直接购买房子等等,听起来很了不起。这个只是表象,是让你去帮忙去库存而已,你真正要了解的关键问题只有一个:就是你真的需要房子吗?需要就买,不需要就屏蔽这些相关信息。
但是,出来了一些眼花缭乱的消息之后,不少房地产中介开始解读,宣称房价又要上涨,催促大家赶紧买房。这个与你的需求没有半毛钱关系,不是说房子不会涨价了,而是我们普通老百姓不可能在涨价前夜买到即将涨价的房子。
大部分中介说房价要涨,然而,他们都抓错了重点,这些并非关键所在,关键是什么房子会涨他没有说?什么房子会跌更没有说?为什么不说?因为他们说不清楚,可以说,谁也说不清楚。
确实24年末出了一些消息,但是此次最核心的调整既不是首付和利息的变动,也不是政府收购库存房,这些都仅仅是手段,并非重点。最为重要的,是在新闻报道中的这样一句话:要深刻认识房地产工作的人民性、政Z性。那么,我说说我的看法?
房地产到今天,与是否完成它的使命没有半毛钱关系,现在一边需要它赚钱,而需求端却不卖账的矛盾出来了【我这样说就比较委婉,大家能理解其意思就行】,用大白话说:以前靠房地产赚钱这部分人,已经上瘾了,现在很难摆脱;而买房者却一下子醒悟过来了,不好割了。所以才有僵局出现。
我现在就站在买房人这一边说说想法:不管出来什么消息,咱们首先要冷静,不管谁说要涨价了,或者说要托底不让它再下跌了,你只需要注意几个问题:我真的需要房子吗?需要哪里的房子,老家的?还是工作地的房子?这个房子有没有问题?会不会让我们去纯接盘?房子安全不?有没有性价比?同样的房子,我能不能少花钱把它弄到手?想这Kaiyun官方中国些问题就可以了,至于其他的消息,大概率与你没有关系,比太在意。
另外,买房目的就是居住,但是首先保证别买了马上就被迫降价,也别想买了马上就涨价,多关注交通是不是便捷,小区旁边有没有学校?有哪些学校?基本生活是不是便捷?房子的居住舒适度高不高?
房地产变了,你得接受,也就是说手里有几套房子的,除了自己住的,其他赶紧出租,租不出去的房子,别犹豫,赶紧卖;自己没有房子的,如果有条件,一定得有自己的一套房子,而且不能在农村,得在人口高度集中的区域,说一个大家可能不怎么相信的现象:房租即将上涨。也就是说,未来你买房和租房、存银H所需要的成本是差不多的,但是租房肯定不如自己的房子,关键点就是把握自己的情况:比如,北京二环的房子好不好?好,但是不合适你;老家的房子便宜不?便宜,但是照样可能不合适你。
所以,我说很多出来的消息,改变不了市场,而我们的观念可以改变自己不踩坑。

简单说:合适你需求的是最有性价比的,首先选好城市,然后定位需求:如果上班通勤,地铁第一,普通交通第二;
如果孩子上学,好学校第一,不管以后怎么变,好学校都有,不好的学校也有,比如说:全国有10000个清华大学,那么也有甲乙丙丁等级之分;
同样的条件,怎么选呢?选好区域之后,同区域选品质最高的;同品质选价格最低的;
怎么样才算性价比?同品质、同配套、同质量、同服务、同面积、同舒适度、同时期,价格最低的性价比最高。
验房不看表面,看内在,看是不是腰线层,槽钢层有没有处理好,墙体有没有空鼓,公摊面积准确不,上下水畅通不,有没有墙体渗水情况,房间户型有没有变异;
质量完全不能接受的:墙体渗水、户型变形、公摊超过标准、管道不畅通等,这些问题是无法解决的。

租金在完全不涨价的情况下,与该房子现在的总价对比,30年租金刚好等于或者大于房子总价。
持续不了多久,衣食住行,必须得有地方睡觉,这个谁也改变不了,但是可能现在不了解未来房地产会变成什么样子?但是,最终的结局是:人人都会住在房子里面,只是租的房子还是自己买的房子不同而已,但是,据了解,年轻人并不是不想买房,而且觉得没有自己合适的、满意的房子而已,要么是房子的位置、要么是房子的价格、要么可能是户型等方面。
声明:本文由入驻焦点开放平台的作者撰写,除焦点官方账号外,观点仅代表作者本人,不代表焦点立场。
和悦新宸售楼处电线首页网站 太仓浏河和悦新宸欢迎您 2025楼盘评测 户型配套-物业费-房价-和悦新宸最新消息
上海北太仓浏河和悦新宸售楼处电话☎:(预约看房热线)上海北太仓浏河和悦新宸项目,定位刚需与改善,精装交付,低密高得房,现房销售,享沪太同城利好。
南山璞缦售楼处电线首页网站 南山璞缦欢迎您 2025南山璞缦楼盘评测 户型配套-物业费-房价-最新消息
南山璞缦南山璞缦售楼处电话☎:(预约看房热线)南山璞缦售楼处提供预约看房,主打3-4房,均价44787元/㎡,融合现代设计与嘉定文脉,打造高品质住宅。
名瑾商务中心售楼处电线首页网站 名瑾商务中心欢迎您 2025楼盘评测 户型配套-物业费-房价-楼盘最新消息
名瑾商务中心售楼处电话☎:(预约看房热线)名瑾商务中心售楼处开放预约,均价1.5-1.6万元/㎡,主打商务与居住结合,配套齐全,绿化率31%,总价750-1050万元。
建发檀府售楼处电线首页网站-建发檀府楼盘详情-建发檀府最新房价-营销中心咨询电话
建发檀府售楼处电话☎:(预约看房热线)建发檀府售楼处提供预约看房服务,主打禅境中式墅居,位于虎丘湿地,配置低密住宅,强调东方贵雅与静谧生活。
和兴云合印-(和兴云合印)首页网站-2025和兴云合印最新房价+户型图+小区环境+配套
和兴云合印售楼处提供预约看房服务,主打高端住宅,融合奢华生活与优质环境,四大核心优势。
Copyright © 2024 开云全屋实木定制公司 版权所有 备案号:粤ICP备20024463号 网站地图